
E-MAIL: ogimmobiliare@libero.it
TELEFONO: 0332242169
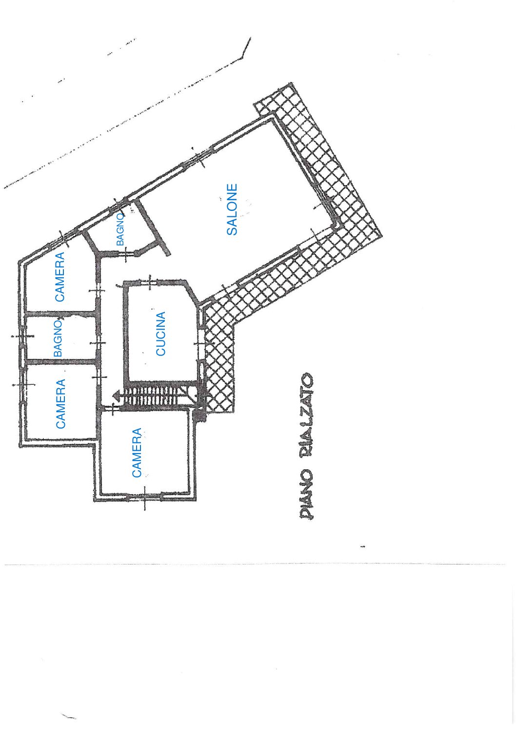
Induno Olona Via Brughiera 45 in zona tranquilla e nel verde proponiamo in vendita ampia villa indipendente con giardino privato di 1000 mq. Al piano rialzato l’immobile si sviluppa su di un unico livello composto da un salone open space con area relax e zona pranzo, una cucina abitabile, tre camere da letto, due bagni finestrati, un disimpegno e due comodi terrazzi con accesso diretto al giardino. Una scala interna conduce al piano seminterrato dove incontriamo una taverna di 45 mq. , un bagno, un ampio locale cantinato, un locale tecnico ed un box per per 3/4 autovetture. La villa gode del verde circostante e di un bel giardino pianeggiante ben piantumato.
Classe energetica: E 259 kWh/mq.anno
Sorry, the comment form is closed at this time.